江苏名天环保工程有限公司
欢迎您的光临!
专业生产:污水设备,叠螺机,环保配件
0510-87839798、手机:13961583998
网站首页
关于名天
公司简介
企业文化
组织机构
公司荣誉
产品视频中心
产品世界
过滤器系列
净水器系列
纯水系列
气浮机系列
油水分离系列
地埋式污水处理系列
高浓度废水处理系列
加药设备系列
消毒系列
螺旋输送系列
石灰料仓系列
砂水分离器系列
沉淀池
滗水器系列
格栅拦污系列
污泥脱水系列
可提升式球冠形微孔曝气装置
环保配件
玻璃钢净化塔
铸铁镶铜闸门
刮吸泥机系列
可提升管膜式曝气装置
生产车间
新闻资讯
公司新闻
行业动态
销售网络
经典案例
联系我们
联系方式
在线留言
产品世界
showcar
过滤器系列
净水器系列
纯水系列
气浮机系列
油水分离系列
地埋式污水处理系列
高浓度废水处理系列
加药设备系列
消毒系列
螺旋输送系列
石灰料仓系列
砂水分离器系列
沉淀池
滗水器系列
格栅拦污系列
污泥脱水系列
可提升式球冠形微孔曝气装置
环保配件
玻璃钢净化塔
铸铁镶铜闸门
刮吸泥机系列
可提升管膜式曝气装置
当前位置 :
网站首页
>
产品世界
>
格栅拦污系列
>
格栅拦污系列
←
→
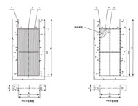
PG平板格栅滤网
江苏名天环保科技有限公司
地址:江苏省宜兴市高塍工业园区
联系人:钟志伟
手机:13961583998
邮箱:dw.811@163.com
咨询热线:
0510-87839798
产品简介
图片展示
产品名称:PG平板格栅滤网
产品描述:PG(PW)平板格栅(滤网)均是用人工清污的水处理设备,主要用于栅渣量较少的自来水厂和城镇污水处理厂的粗(细)格栅渠内,作为临时格栅。
在线询盘
一、PG(PW)平板格栅产品用途
PG(PW)平板格栅(滤网)全部都是用人工清污的水处理设备,糨主要作用于栅渣量较少的自来水厂和城镇污水处理厂的粗(细)格栅渠内,作为临时格栅的使用。
二、PG(PW)平板格栅结构及工作原理
平板格栅(滤网)主要是由钢结构框架、栅条(或滤网)以及导轨等构件组成的过水栅面,当污水流过平板格栅(滤网)时,体积大于栅隙的杂物将被平板格栅(滤网)拦截,清理时由人工进行清捞。
三、PG(PW)平板格栅型号说明
四、PG(PW)平板格栅主要特点
PG(PW)平板格栅设备结构简单、安装操作方便、成本投资少;
PG(PW)平板格栅可以多个并联结合,可适应不同的渠道宽度作用。
TOP
售前咨询
技术支持
在线留言
扫描访问手机网站